物件概要
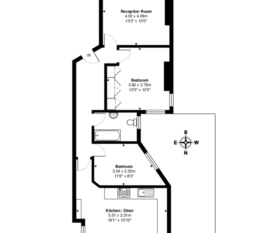
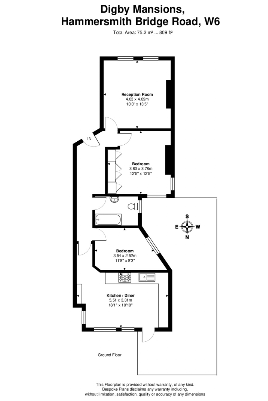
Hammersmith駅から徒歩7分の立地でテムズ川沿いに位置する建物、Digby MansionsのUpper Ground Floorの2ベッドルームマンションのご紹介です。
改装したばかりのモダンでスタイリッシュな内装が特徴で、広いリビング、ダイニングスペースが確保されたキッチン、多収納なベッドルーム、ベッドルームとしても使える書斎、お洒落なデザインのバスルーム。
家具付き物件になりますので、余計な出費を抑えながらお引っ越し可能。
建物から出ると、すぐ川沿いの遊歩道があるので、ジョギングやお散歩が好きな方は、必見の物件です。
最寄り駅は、Piccadilly Line, District Line, Circle Line, Hammersmith & City Line をご利用出来るHammersmith 駅が徒歩7分となります。
所在地
Google Mapsで開く- Address: Hammersmith Bridge Road, London W6 9DE, UK
- ポストコード: W6 9DE
- エリア: 西ロンドン
詳細
更新日 4月 11, 2026 : 11:18 pm- 賃貸料金 £3,200/月
- 敷地面積 75 sqm
- ベッドルーム 2
- リビングルーム 1
- バスルーム 1
- 物件タイプ フラット/アパート
- ステータス 成約済
- 職業属性希望 問わない
- 物件スタイル パーパスビルトフラット
- 物件全貸し/部屋貸し 物件全貸し
- 入居時期 即入居可
- タックス・バンド D
- ガス証明は必要ですか? はい
- 敷金(デポジット)単位:£ 3692
- 最寄駅 Hammersmith
仕様
- フラット/アパート
- 1
- 2
- 1
- 75 sqm
エネルギー効率クラス
- エネルギー効率クラス: C
- 現在のEPC評価: 70
- 潜在的なEPC評価: 78
- A
- B
- | Energy Efficiency Class CC
- D
- E
- F
- G
内覧予約(第一希望)
内覧タイプ
オファー申請 …入居希望者が貸主に対して賃貸条件を提示し、入居の意思を示す手続き
お名前必須 | |
|---|---|
メールアドレス必須 | |
電話番号 ※国番号からご記入ください必須 |
物件管理/オーナー
他の物件リストを見る近隣物件一覧
Chiswick Park 駅から徒歩3分のポーター付きの築浅マンション、明るくモダンな2ベッドルーム家具付き物件
Edmunds House, Colonial Drive, ロンドン イギリス, 西ロンドン 詳細旧BBC Television Centreの敷地内にある24時間コンシェルジュ付きの高級1ベッドマンション
2 Wood Crescent, London W12 7GJ, UK, 西ロンドン 詳細- JapanLondonHomes




